avendo Logo
BlogBlog

Blog

Tagesaktuelle Neuigkeiten vom Immobilienmarkt
RatgeberRatgeber

Ratgeber

Schritt für Schritt zur Übersicht im Hausverkauf
Das avendo-PrinzipDas avendo-Prinzip

Das avendo-Prinzip

Der Ablauf für Hauseigentümer mit avendo
FAQFAQ

FAQ

Häufig gestellte Fragen zum Schweizer Markt
avendo market insights
Der Markt ist in Bewegung, bleiben Sie up to date!
Der monatliche avendo Newsletter liefert Ihnen die wichtigsten Entwicklungen am Immobilienmarkt...jeden Monat neu!
avendo market insights
Der Markt ist in Bewegung, bleiben Sie up to date!

Hauptstrasse 53

4633 Hauenstein-Ifenthal SO
- m²
0 Zimmer
0 Badezimmer
Verfügbarkeit:
Auf Anfrage

Verkaufspreis

Portrait Agent Mario Breitenstein
Ihr Kontakt
Mario Breitenstein

Grosszügiges Bauland, sonnig und ruhig in Hauenstein zu kaufen

Hauptstrasse 53, 4633 Hauenstein-Ifenthal SO

Diese aussergewöhnliche Baulandparzelle in Hauenstein bietet Ihnen die einmalige Gelegenheit, Ihr Traumprojekt zu verwirklichen. Mit einer Fläche von 8807 m² und leicht erschlossen, punktet dieses Grundstück mit seiner ruhigen, sonnigen Lage über dem Nebel und bietet einen idealen Rückzugsort für zukunftsorientierte Bauherren.
Portrait Agent Mario Breitenstein
Ihr Kontakt
Mario Breitenstein
Icon Hanglage

An einer

Hanglage

Icon Sonnig

Sehr

Sonnig

Icon Ruhig

Sehr

Ruhig

Entwickeln Sie Ihr Projekt auf 8807 m² in idyllischer Lage.

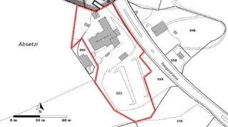
Das zum Kauf stehende Bauland in Hauenstein besteht aus drei zusammenhängenden Parzellen und umfasst eine beeindruckende Fläche von 8807 m². Diese Baulandfläche, ideal gelegen am Südfus des Jura, bietet Ihnen eine Vielzahl von Gestaltungsmöglichkeiten und profitiert von einer bereits teilweise erschlossenen Lage. Das Grundstück ist stark nachgefragt, da es sich um die letzte verfügbare Parzelle auf der Passhöhe handelt, die über dem Nebel thront und somit eine exzellente Sonnenlage verspricht. Zusätzlich zur Quitz bietet die Region Hauenstein-Ifenthal wunderschöne Wanderwege sowie eine hohe Lebensqualität, die Ruhe und Naturverbundenheit mit Nähe zur Infrastruktur verbindet. Dank der verkehrstechnisch günstigen Position zwischen Olten und dem Hauensteinpass ist die Anbindung für zukünftige Projekte hervorragend geeignet. Dieses Grundstück bietet nicht nur Raum für Visionen, sondern stellt auch eine wertvolle Investitionsmöglichkeit in einer attraktiven Lage dar. Sollte der Preis für Sie noch nicht ganz passen, senden Sie mir gerne Ihr Angebot. Der Markt entscheidet bekanntlich am Ende selbst.
Zögern Sie nicht, diese seltene Gelegenheit zu ergreifen. Investieren Sie in Ihre Zukunft und gestalten Sie Ihr persönliches Bauprojekt in Hauenstein!
Grundstückfläche m²
Zusammenhängende Parzellen

Gestaltungsoptionen
Lage
Objektbild Hauptstrasse 53, 4633 Hauenstein-Ifenthal
Objektbild Hauptstrasse 53, 4633 Hauenstein-Ifenthal
Objektbild Hauptstrasse 53, 4633 Hauenstein-Ifenthal
Objektbild Hauptstrasse 53, 4633 Hauenstein-Ifenthal
Objektbild Hauptstrasse 53, 4633 Hauenstein-Ifenthal
Objektbild Hauptstrasse 53, 4633 Hauenstein-Ifenthal

Eigenschaften





Makrolage

Hauenstein-Ifenthal

Hauenstein-Ifenthal ist eine charmante Gemeinde im Kanton Solothurn, eingebettet in die idyllische Landschaft am Südfuss des Jura. Sie besteht aus den Ortsteilen Hauenstein und Ifenthal und ist bekannt für ihre ruhige, ländliche Atmosphäre, schönen Wanderwege und die hohe Lebensqualität. Dank der Lage zwischen Olten und dem Hauensteinpass ist die Gemeinde auch verkehrstechnisch gut erschlossen.

Über dem Nebel zuhause!

Umgebung

Berechnen Sie das benötigte Jahreseinkommen und Eigenkapital zum Erwerb dieser Liegenschaft mit unserem Hypothekenrechner.
Kaufpreis
Kaufnebenkosten* CHF 204’000.–
Belehnung in %
mind. 20%
Hypothek CHF 6’800’000.–
Eigenmittel CHF 1’700’000.–
Benötigtes Jahresgehalt
Anmelden

Benötigtes Eigenkapital

0%
5%
CHF 136’000.– Zinsen
CHF 63’750.– Nebenkosten
Monatliche Gesamtkosten **
Davon Amortisation

* Im Kanton Solothurn 2.4% Erwerbsteuern inkl. Notarkosten** Unverbindliche Prognose